5016 Gallop Ct.Myrtle Beach, SC 29588




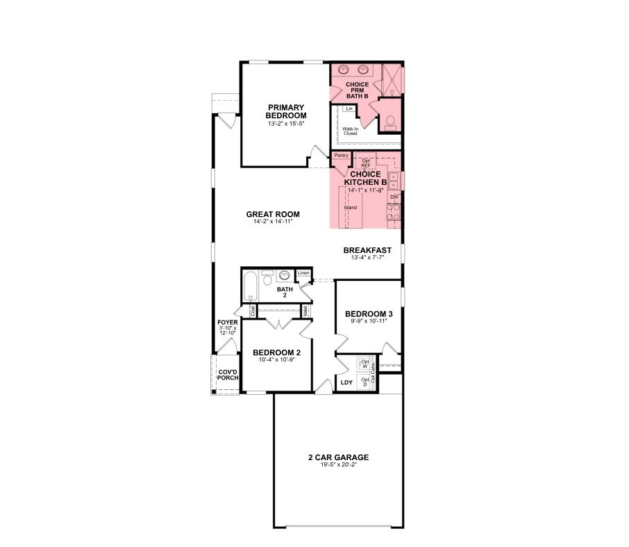
Welcome to the Azalea a beautiful single-story home located in the heart of Myrtle Beach. This stunning new construction home features 3 beds and 2 baths, offering ample space for comfortable living. The 1419 sq ft layout includes a kitchen that flows seamlessly into the dining area and great room, creating a bright and inviting main living space. A private primary suite with walk-in closet is tucked at the rear. The primary bathroom includes a walk-in shower and dual vanity. The two secondary bedrooms are positioned at the front for added privacy and plenty of room for family or guests. Step outside to enjoy the back patio on the 0.21 acre lot overlooking a thick wooded view, perfect for entertaining or relaxing. Additional highlights include a 2-car garage. Located in the sought-after Somerset community, this home offers a community pool & clubhouse and easy access to shopping, dining, local beaches, and Coastal Carolina University, combining convenience with comfort. As America’s number one energy-efficient homebuilder, we’re proud that in 2024 our homes achieved an average net HERS® score of 37 (with solar) and a gross score of 42—the lowest publicly reported among the top 30 U.S. homebuilders in Builder Magazine’s Top 100 list (ranked by 2024 closings).
| 5 days ago | Listing updated with changes from the MLS® | |
| 5 days ago | Listing first seen on site |
Listing information is provided by Participants of the Coastal Carolina Association of Realtors. IDX information is provided exclusively for personal, non-commercial use, and may not be used for any purpose other than to identify prospective properties consumers may be interested in purchasing. Information is deemed reliable but not guaranteed. Copyright 2026, Coastal Carolinas Multiple Listing Service, Inc
Last checked: 2026-03-29 09:23 AM UTC


Did you know? You can invite friends and family to your search. They can join your search, rate and discuss listings with you.